RSHP

卡尔顿府联排 20 号

项目主持人
Daniel Wright

项目主持人
Daniel Wright

日期
2019 - 2025

业主
H.I.G Capital

地点
London, UK

简介

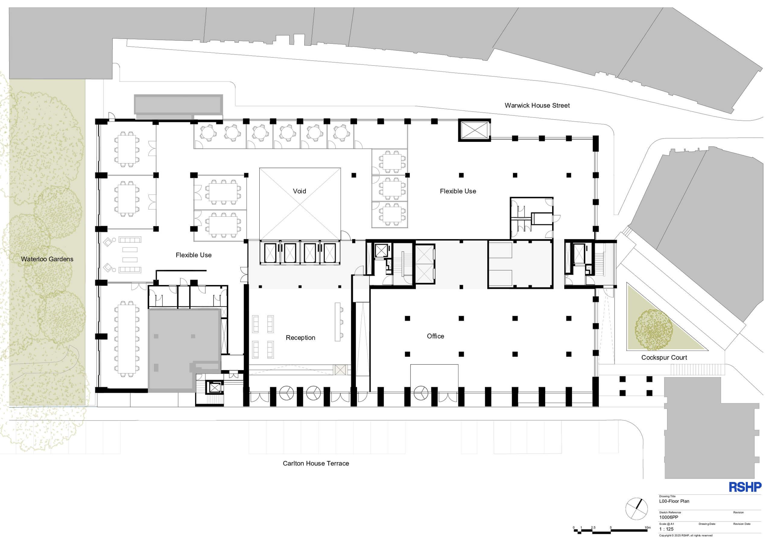
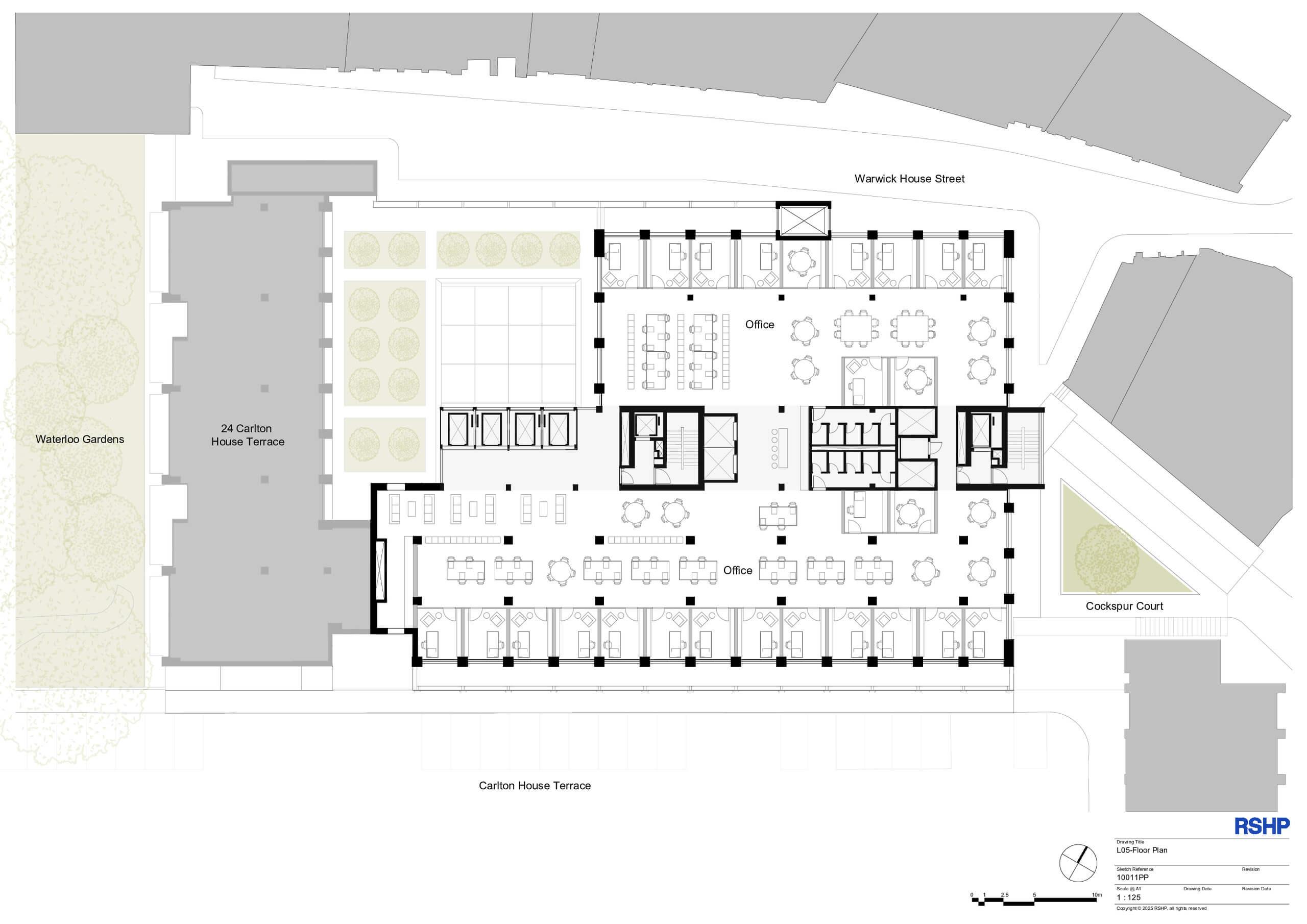
卡尔顿府联排 20 号(20 Carlton House Terrace)位于伦敦圣詹姆斯区,是一项集商业改造与扩建于一体的更新项目。项目所在地区具有高度敏感的历史文化环境,周边建筑多为一级或二级登录保护建筑,其中包括由约翰·纳什(John Nash)设计的重要建筑群卡尔顿府联排 10–18 号。RSHP 与业主紧密合作,共同研究并制定最优的更新策略。尽管在项目初期曾考虑对基地进行整体新建开发,但这一设想在与业主的持续协作中逐步演变。通过对既有建筑的细致分析,团队发现,在保留现有主体结构及地下室围护结构的前提下,仍可实现原新建方案所具备的诸多优势,同时显著降低施工过程中的隐含碳排放,充分体现可持续发展的价值。

RSHP 的方案将现有 1970 年代办公楼及地下停车场改造为高品质商业开发项目,以充满活力的社交中心为核心。新建核心筒布局经过精心设计,不仅支持面向未来的服务策略,也简化了平面结构,提升租赁灵活性与使用效率。地下层通过在外围引入自然采光,并在核心位置设置新的顶部采光中庭,打造出采光充足、灵活多用的高品质空间。项目同时通过新增软硬景观,对公共空间进行优化,营造更宜人、更具活力的城市环境。

主入口经过重新布置,形成双层挑高大堂,通向一组全新玻璃电梯,贯通各楼层。乘坐电梯时,可俯瞰中庭景观、新建的一层屋顶花园,以及远眺北侧的城市风貌。街道上若隐若现的丰富室内空间,将地上与地下层有机串联,形成统一而连贯的整体体验。

核心筒结构经过重新布置,引导了高楼层的阶梯式布局,两处新建屋顶露台为使用者提供了绝佳的景观视野。轻量化的屋顶扩建风格大胆又现代,同时与下方既有建筑巧妙融合。其精心布局不仅尊重周边住宅的空间关系,也兼顾了法定景观保护要求,确保从议会山(Parliament Hill)到威斯敏斯特宫(Palace of Westminster)的视线通廊不受影响。

现有立面的玻璃面积被增加后,提升了室内采光和视野。大部分原有天然石材立面得以保留,以维护与邻近建筑群的整体价值——这些建筑均为同一 1970 年代开发项目的一部分。最终效果呈现出现代、真实且优雅的改造成果,在历史悠久的 圣詹姆斯保护区(St James’s Conservation Area) 实现了精致的当代介入。

项目资料

团队
Vitika Agarwal, Bevan Badenhorst, Jean Corona, Luca D'Amico, Benjamin Darras, Dylan Davies, John Dent, Will Jeffries, John Kennedy, Stephen Light, John McElgunn, Joanna Pencakowski, Peter Shannon, Graham Stirk, Alejandro Terron, Emily Wilkinson, Daniel Wright, Andrew Yek

项目主持人
Daniel Wright

日期
2019 - 2025

地点
London, UK

Gross Internal Floor Area
21 400m²

Developer
Clivedale / Altius Real Estate

Delivery architect
EPR Architects

Structural Engineer
Elliott Wood

Environmental Engineer
Hoare Lea

Quantity Surveyor
Core Five

Planning Consultant
DP9

Heritage Consultant
KM Heritage

Highways/Waste
Transport Planning Practice

M&E Consultant
Hoare Lea

Landscape Consultant
Reardon Smith

Acoustic Consultant
Hoare Lea

团队

团队
Vitika Agarwal, Bevan Badenhorst, Jean Corona, Luca D'Amico, Benjamin Darras, Dylan Davies, John Dent, Will Jeffries, John Kennedy, Stephen Light, John McElgunn, Joanna Pencakowski, Peter Shannon, Graham Stirk, Alejandro Terron, Emily Wilkinson, Daniel Wright, Andrew Yek

日期
2019 - 2025

地点
London, UK

Gross Internal Floor Area
21 400m²

Developer
Clivedale / Altius Real Estate

Delivery architect
EPR Architects

Structural Engineer
Elliott Wood

Environmental Engineer
Hoare Lea

Quantity Surveyor
Core Five

Planning Consultant
DP9

Heritage Consultant
KM Heritage

Highways/Waste
Transport Planning Practice

M&E Consultant
Hoare Lea

Landscape Consultant
Reardon Smith

Acoustic Consultant
Hoare Lea

相关