RSHP

圣罗伦斯市场北区

项目主持人
Ivan Harbour

项目主持人
Tadashi Arai

项目主持人
Ivan Harbour

项目主持人
Tadashi Arai

日期
2010 - 2025

业主
City of Toronto

地点
Toronto, Canada

简介

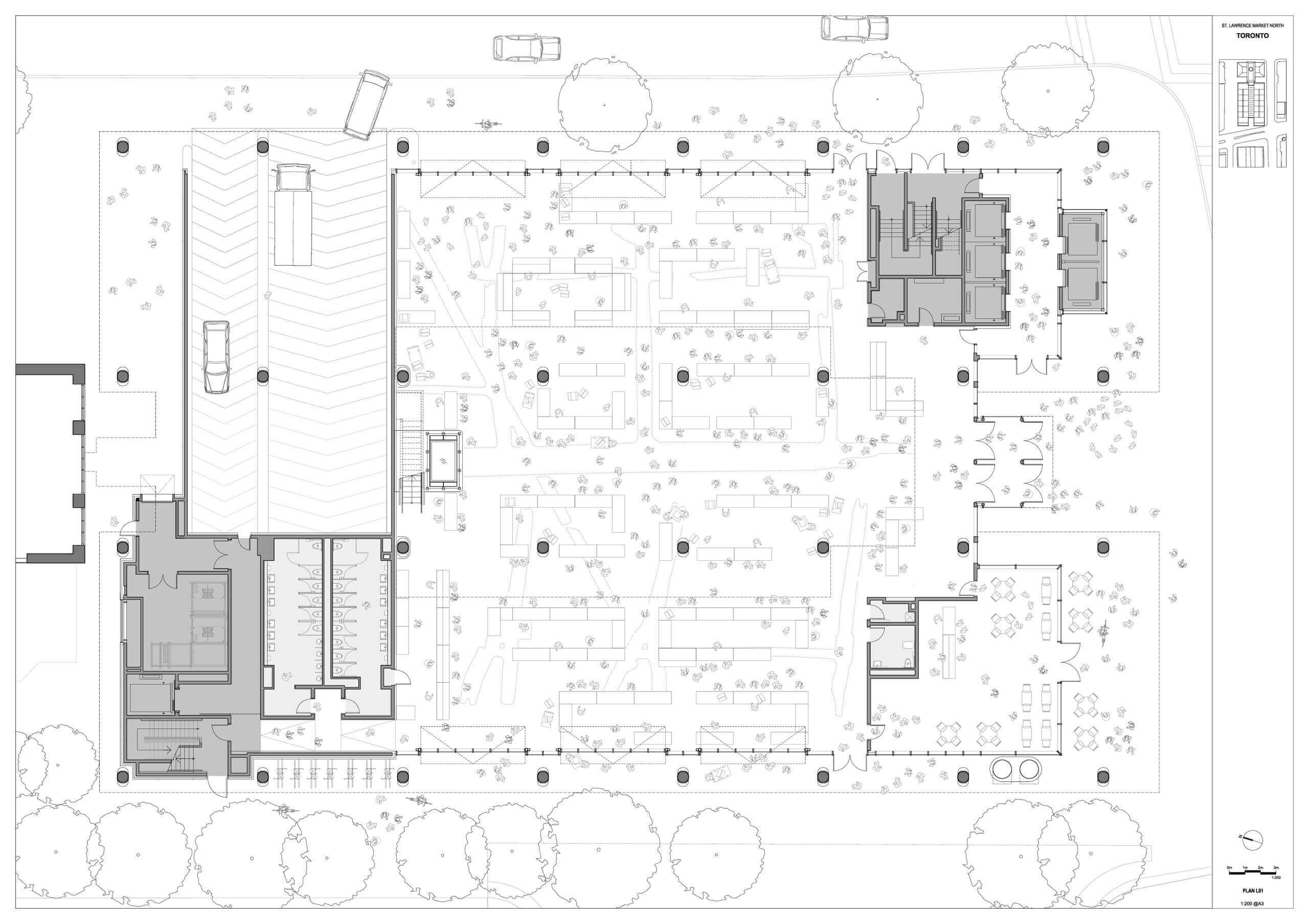
圣劳伦斯北市场(St. Lawrence Market North)是圣劳伦斯综合体的一部分,结合了法庭、办公空间以及一个大型市场大堂。这里是一个备受欢迎的农夫市集和周日古董市场的所在地,设计上将这些市场重新整合为城市脉络中的一个整体。市场本身是一个带顶棚的户外空间,可根据不同季节或需求进行封闭或遮蔽,从而支持多种活动和功能的开展。

自1803年起,这里便一直存在一座常设市场。1831年,随着一座新市场大楼的建成,为市场和市政用途结合开创先例,这座新大楼在二层设有一个集会大堂。1850年,圣劳伦斯大堂在北侧建成,整座综合体成为了城市的社交中心,举办了公共会议、音乐会、讲座和展览等活动等。如今,圣劳伦斯市场区依然拥有丰富的街区生活,深受本地居民和游客的喜爱。

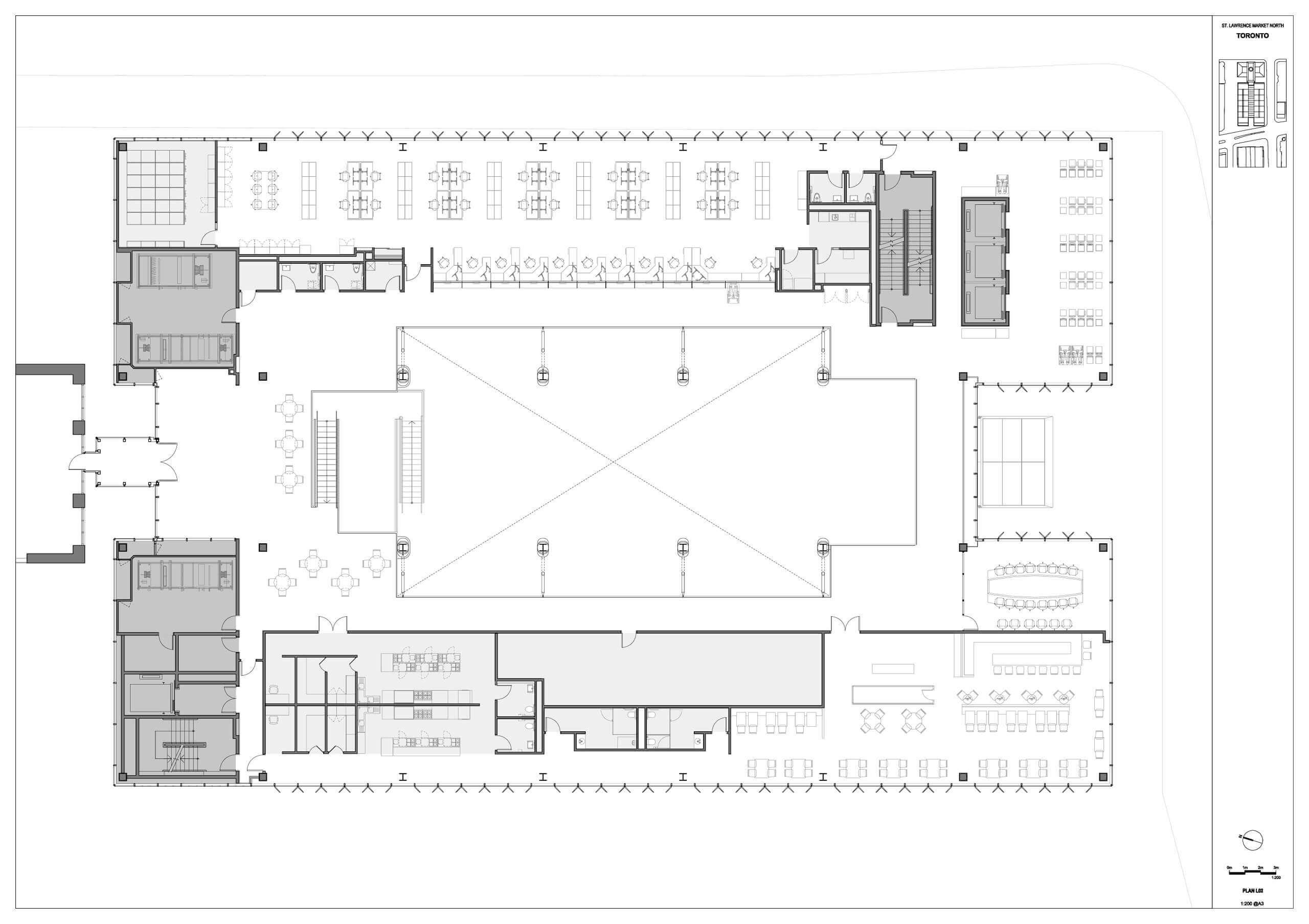
RSHP设计的五层市场大楼,中央延伸一条玻璃廊道,形成一座明亮的玻璃天花中庭。这一条有顶的街道贯穿整个场地,开通了从南市场到新大楼,最后进入圣劳伦斯大厅的视野和步行路线,重新连接了整个综合体。

市场区域被最大化利用,创造了一个灵活且具有渗透性的空间。地面层的玻璃门在开启时,将建筑转变成一道拱廊,将市场延伸到邻近的街道上。一座夹层提供了画廊、咖啡馆和支持功能的空间,同时也提供了扩充市场空间的灵活性,可举办音乐会、招待会、婚礼、产品发布及其他活动。有了直通圣劳伦斯大厅的入口,将原本独立的建筑变成一个整体设施使用。

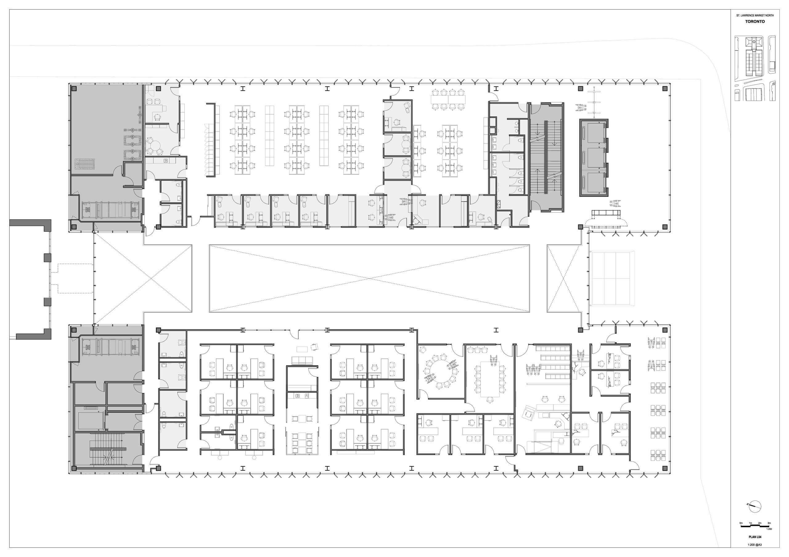
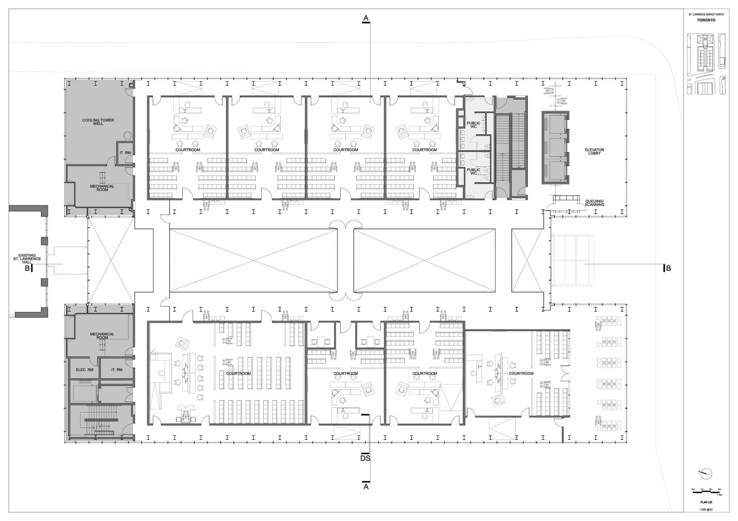
配套设施位于二层和三层,而法庭位于五层,正是屋顶下方。公众通过一条宽阔的阳台从有顶街道进入法庭,而法官则从楼下的私人入口进入,避免与公众发生冲突。设计的初衷是通过北向采光、宽敞的空间和开阔的天空视野,将法庭变成一个宁静的环境。

建筑采用低能耗环控策略。其简洁的形态使得能源系统简单直接,甚至超越最新的城市环境设计标准;这些空间被设计为混合式环境调节,以最大限度地利用自然光和通风。绿化屋顶将有助于减少城市热岛效应,太阳能热水板将为建筑供应热水。

项目资料

团队
Tadashi Arai, Lennart Grut, Ivan Harbour, Andrew Morris, Tosan Popo, Richard Rogers, Neil Southard

主责合伙人
Ivan Harbour

项目主持人
Tadashi Arai

主责合伙人
Ivan Harbour

项目主持人
Tadashi Arai

日期
2010 - 2025

地点
Toronto, Canada

Gross Floor Area
20000 m²
Market
4000 m²
Offices
4000 m²
Courts
3000 m²

Co-Architect
Adamson Associates Architects

团队

团队
Tadashi Arai, Lennart Grut, Ivan Harbour, Andrew Morris, Tosan Popo, Richard Rogers, Neil Southard

日期
2010 - 2025

地点
Toronto, Canada

Gross Floor Area
20000 m²
Market
4000 m²
Offices
4000 m²
Courts
3000 m²

Co-Architect
Adamson Associates Architects

主责合伙人
Ivan Harbour

项目主持人
Tadashi Arai

主责合伙人
Ivan Harbour

项目主持人
Tadashi Arai

相关