RSHP

RSHP 打造维耶恩德尔结构结构标志性建筑,助力梅费尔文华东方酒店亮相伦敦核心区

18 August 2024

克利夫戴尔(Clivedale)开发的梅费尔文华东方酒店(Mandarin Oriental Mayfair)是梅费尔十多年来首座全新建造的豪华酒店,酒店提供50间客房与套房以及77套私人公寓,设有屡获殊荣的主厨Akira Back首家伦敦餐厅、两间酒吧和一个配有25米泳池的水疗中心。该建筑接纳新开通的邦德街伊丽莎白线车站和汉诺威广场及其公共空间更新所带来的大量人潮,成为西敏市战略规划的一部分,旨在提升伦敦该区域的活力。

RSHP 的新设计方案以当代城市风貌回应了汉诺威广场独特的规模和历史城市肌理。通过在窗户开口和朱丽叶阳台上使用深白色揭示面,配合创新的外露结构,建筑立面呈现出微妙的复杂性,呼应梅费尔区传统的白色灰泥风格。手工制作的细长砖块,嵌入框架面板中,为汉诺威广场红砖乔治时代建筑色彩和比例提供一种当代诠释。

RSHP 高级设计总监 Graham Stirk:"我们的设计灵感来自历史悠久的梅费尔大街的宏伟乔治式连排住宅,打造了一个独特的结构系统,呼应了周围建筑立面的垂直尺度。通过支撑大面积的灵活楼板,结构设计响应了业主的需求,而无需中央核心。这种设计不仅丰富了汉诺威广场的历史氛围,还巧妙地展示了建筑的制造工艺和结构完整性。"

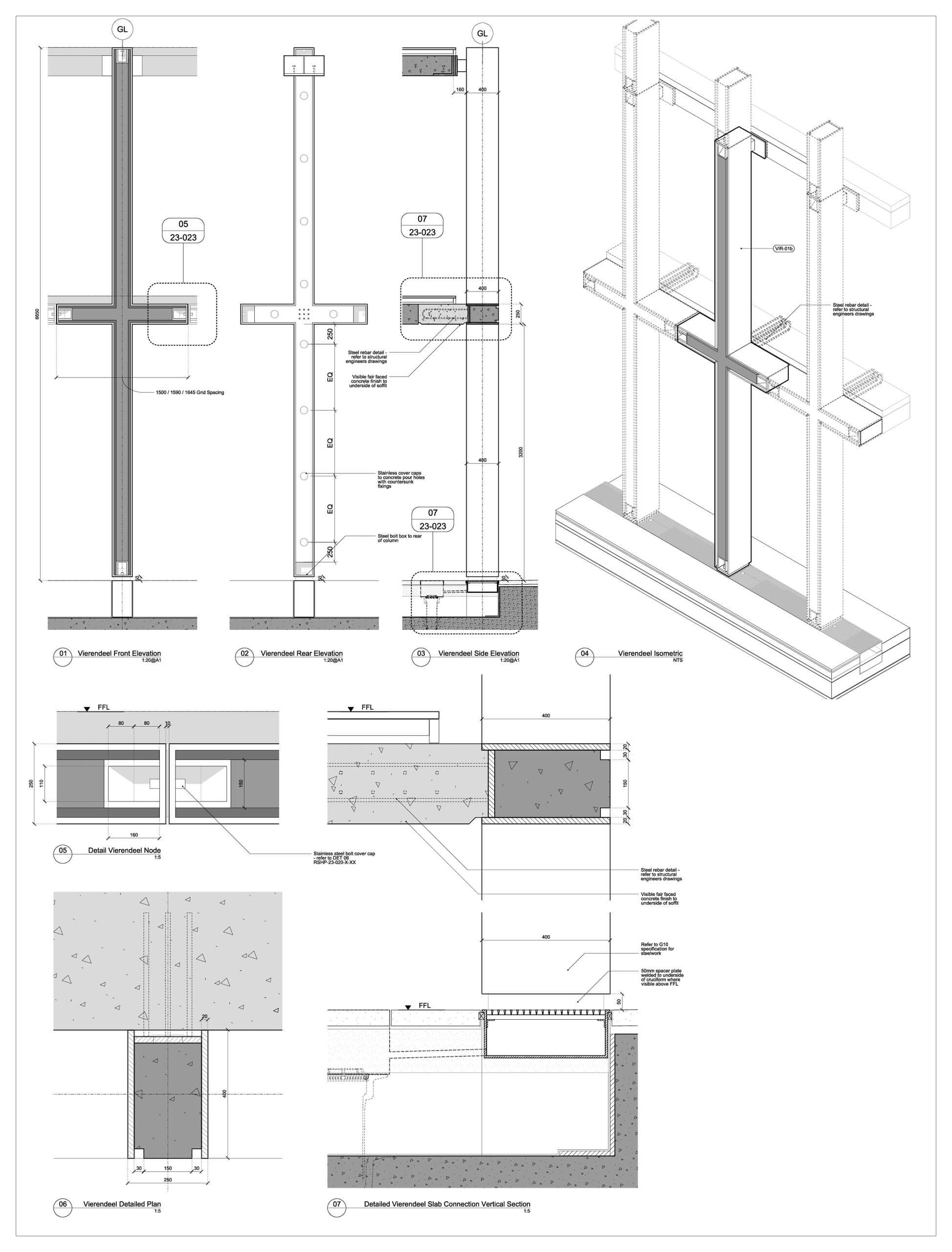
建筑立面别出心裁地采用维耶恩德尔结构框架外露,强调主要梁柱元素,并以砖面板和玻璃窗洞填充。虽然维耶恩德尔结构多用于桥梁或大跨度桁架,且呈水平布局,RSHP 与 Ramboll 结构工程师团队将其设计为竖向结构,支持现代建筑风格的大跨度空间。这种设计不仅为业主提供了高度灵活的楼板布局,还创造出宏伟的“城市风貌立面”。

建筑立面化解了原本复杂的空间布局,建筑主体位于城市街区的中心,而较小的部分则向汉诺威广场和布鲁克街延伸。RSHP 的新建筑由两座多层建筑构成,通过一座玻璃楼梯和电梯核心筒连接各楼层,也使得阳光撒入平面和地下层。

在结构柱廊的后方,酒店与住宅入口呈现为一个带顶的公共通道,通往一处设有玻璃幕墙的双层挑高下沉式庭院餐厅。屋顶酒吧与露台则可俯瞰汉诺威广场以及更广阔的威斯敏斯特城区,视野开阔,风景优美。

这座建筑采用钢筋混凝土外露钢结构,工艺精湛、比例精确,确保结构语言清晰可辨。细看之下,其构件的细节与材质展露无遗。白色涂装的钢制十字形维耶恩德尔结构内部填充了手工处理的复合结构混凝土,外层采用抛光的火山灰与混凝土混合物,呈现出类似玄武岩的质感,呼应汉诺威广场部分砂灰砖立面的建筑风格。

RSHP 协同合伙人 Maurice Brennan 表示:"建筑的主要特征是一套外露的维耶恩德尔式钢结构骨架,全部构件均在工厂预制完成。这个复式结构环绕场地边界展开,内部结构最小化。我们希望为 Clivedale 提供最大限度的空间灵活性,使其既能满足文华东方酒店集团复杂的功能需求,又具备应对未来住宅市场变化的能力。

建筑外围的维耶恩德尔钢柱尺寸仅相当于一张 A4 纸。在每个主要体量内部,仅设置了四根结构柱。"

所有主结构构件均在场外预制完成,包括684根梁和内部混凝土柱。此一做法使得在一个三面被毗邻建筑紧密包围的受限场地上,能够高效建造这样一座规模可观、采用独特维耶恩德尔式结构体系的建筑。该建筑的立面设计支持拆卸,便于在生命周期结束后实现再利用或回收利用。

克利夫戴尔公司 总监 Ed Blake 表示:“与 RSHP 合作这个项目是一段非常有收获的经历,过程中的挑战反而成为跳脱常规、重新思考的契机,我们也很高兴能够呈现出如此非凡的成果。整个建筑最具代表性的亮点是外部白色的维耶恩德尔式框架结构,它赋予我们极大的灵活性,可以自由规划公寓与伦敦梅费尔文华东方酒店的内部空间。我个人也非常喜欢两座主楼之间的中庭玻璃核心筒,在夜晚被电梯底部灯光点亮时所呈现出的动感画面,电梯在夜空中上下穿梭,极具视觉冲击。”

伦敦梅费尔文华东方酒店总经理 Susanne Hatje 表示:“我们很荣幸能在梅费尔最古老的广场——汉诺威广场上开设酒店及私人住宅,因此在建筑设计上尤为注重与周边环境的协调与尊重。最终的成果令我们十分满意:建筑外观呼应了邻近立面的垂直尺度,并与广场的历史氛围相得益彰。与此同时,这也启发了由东京设计事务所 Curiosity 打造的公共空间室内设计理念,他们以‘自然与艺术的交汇中心’为核心概念,赋予空间独特气质。.

业主:
Clivedale / Mandarin Oriental Hotel Group
建筑师:
RSHP
结构工程师:Ramboll UK
设备工程师:
Hoare Lea
无障碍顾问:
Reef Associates
交付建筑师:AFK
景观建筑师:Spacehub
城市风貌顾问:
Richard Coleman Citydesigner
工程总包:
ISG
工料测量师:
Gardiner & Theobald
室内设计师:
Studio Indigo, Curiosity